老後を楽しむための平屋 YUTORI mini(平屋+α)
NEW 平屋スタイル
![]() |
Feature 特徴 価格 |
赤ちゃん基準の健康な空気。
家族みんなが安心できる家 漆喰と無垢の家 ravie に新しいスタイルのコンパクトな平屋
YUTORI mini が仲間入りしました。
こんな方におすすめ
● 平屋生活に憧れるけど、平屋を建てるだけの広い土地がなかなか見つからない
● 普段の暮らしは1階のみで完結したいけれど、趣味を楽しむための部屋がほしい
● なるべく予算を抑えて、平屋生活を満喫したい
● 時々遊びに来るお孫さんが泊まるための部屋がほしい
誰もが一度はあこがれる平屋での暮らし。しかし、いざ平屋を建てようと動き出すと、最初に立ちはだかるのが土地の問題です。
平屋を建てるには、総二階のお家を建てるよりも広い土地が必要になります。広い土地を購入すれば、土地代金がかかるので、建物にかける金額を抑えなくてはいけない…そもそも、建物自体も、総二階の家に比べて平屋は割高になってしまいます。
そんなみなさまのお悩みを解決する、
老後を楽しむための新しい平屋スタイル
YUTORI mini(ゆとりミニ)

見た目は平屋。
少しだけ天井高をあげることで、本来は屋根裏になる空間を部屋として利用するから、すべての部屋を1階につくるよりも、お値打ちに平屋生活を実現することができます。

一番高い天井部分は、大人が普通に立っても問題ない高さがあり、屋根の形に沿って勾配天井になっているのが特徴です。天井が低いところには、収納やベッドを置いてしまえば、普通のお部屋としてお使いいただけます!
階段でのぼれるロフトの設置実績 80%以上を誇るグッドホームだからできる新しい平屋スタイルのご提案です。
ゆとりの空間で、収納にも、心にもゆとりを♪
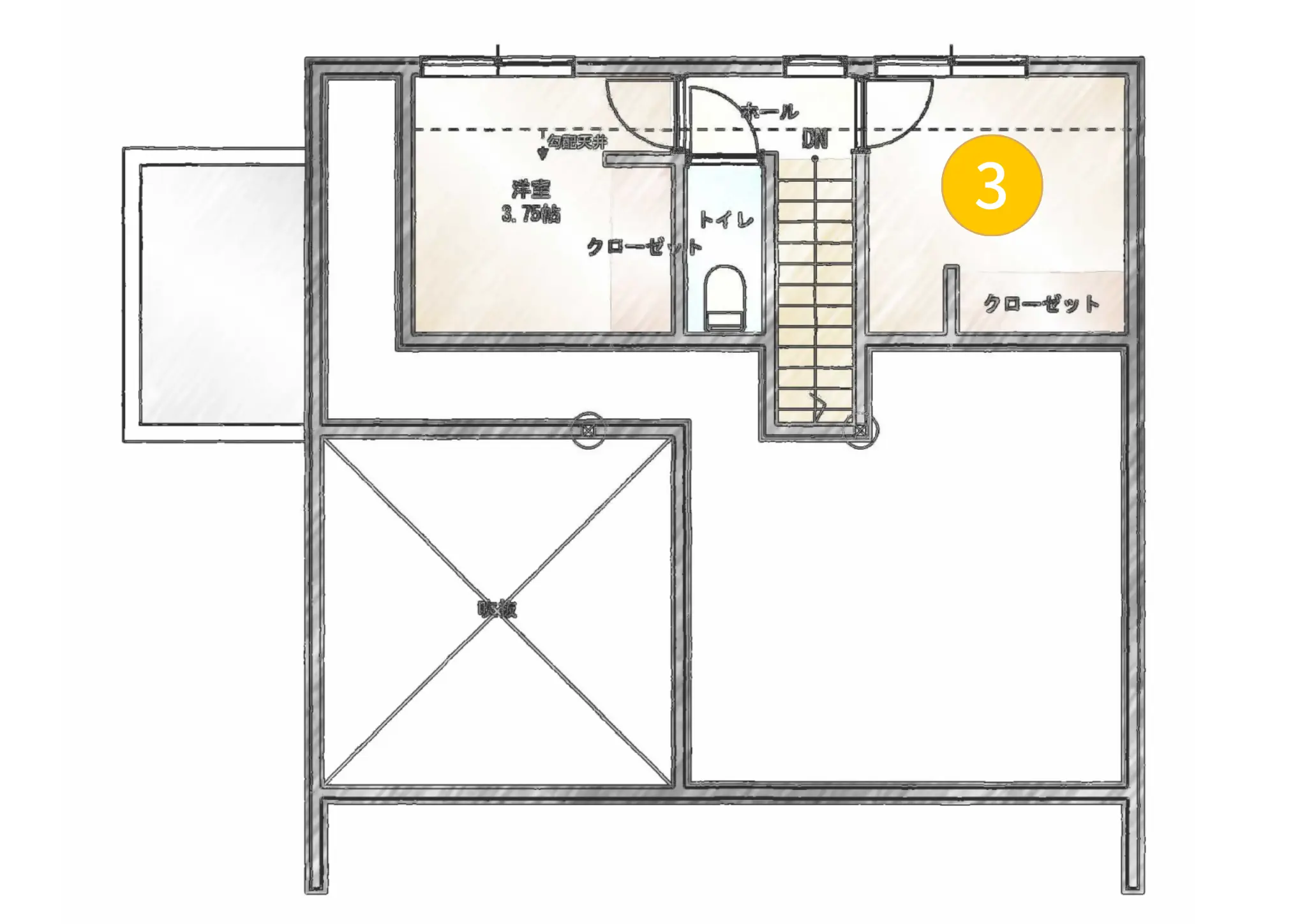
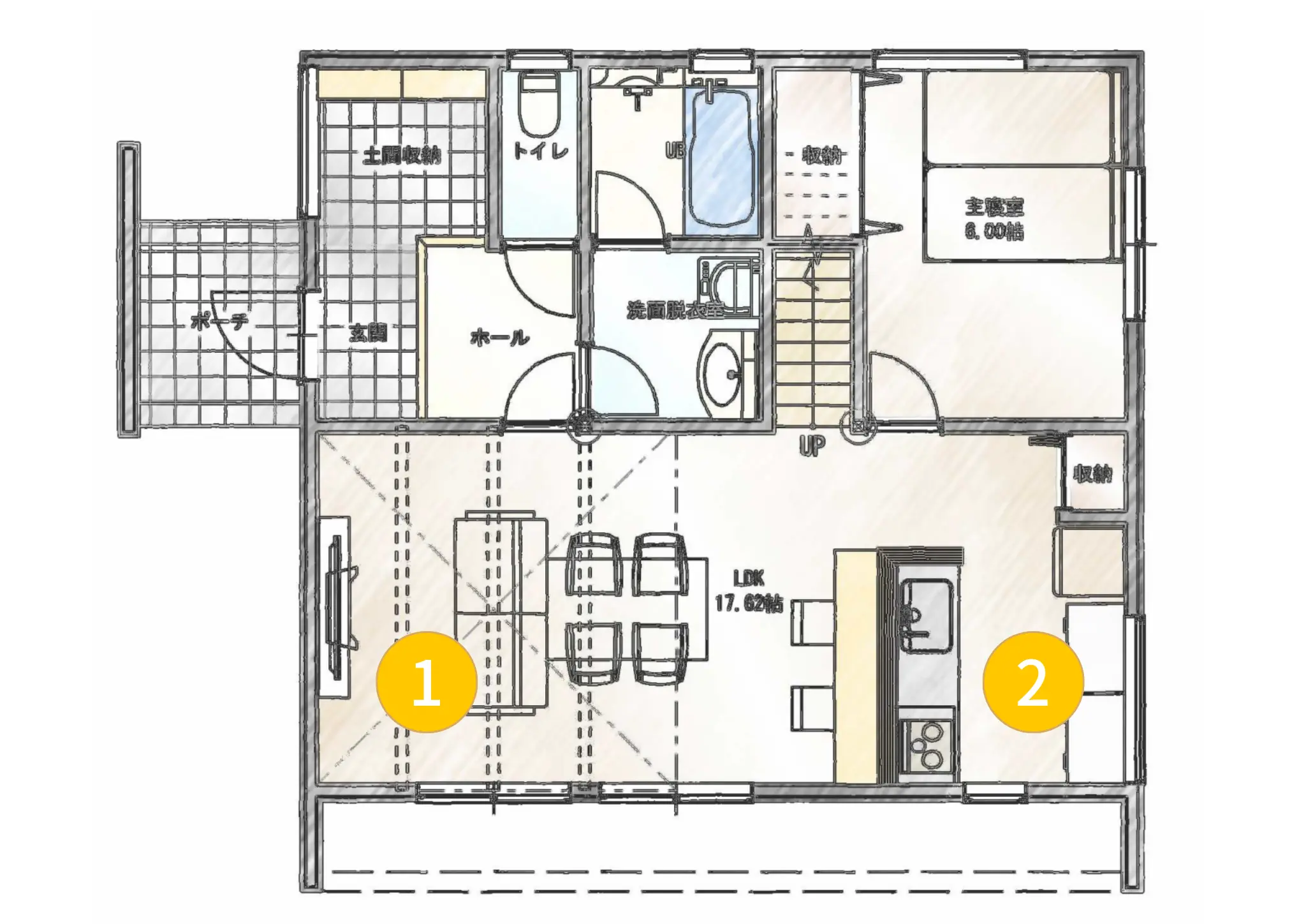
PLAN 参考プラン
1F
|
2F
|
|
① |
② |
③ |
商品ラインナップ
漆喰と無垢の家 mini


%20(1).webp)

.webp)
%20(1).webp)
%20(1).webp)
%20(1).webp)

